



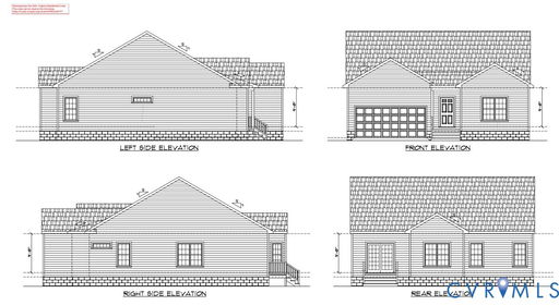
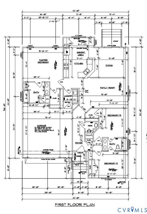
Welcome to 831 Green Ridge Dr! This rare one-level new construction offers modern living with a semi-open floor plan, upgraded finishes, and a convenient two-car garage. Designed for both comfort and functionality, the main living area features luxury vinyl plank flooring, recessed lighting, and a beautifully appointed kitchen perfect for everyday living and enterta...

